加納3丁目 中古戸建5号地
「加納3丁目 中古戸建2号地」:東大阪市エリアの新居にピッタリ。TVインターホン付きでお子様のお留守番も安心です。機能的で使いやすいシステムキッチン付きなので、お料理を楽しめます。広々とした15帖以上のLDKで家族とゆったり過ごせます。近鉄けいはんな線吉田周辺にある不動産を探すなら、ミーツ不動産のスタッフまでご希望の条件をお伝えください。
-
ローンシミュレーションこの物件を購入した場合の、月々の支払い価格の一例です。借り入れを保証するものではございません。
- 返済期間
-
- 金利
-
- ボーナス時の増額(1回分)
-
- 借入金額:
-
- 頭金:
-

- 毎月の返済額:
(※元利均等方式 金利5.00%まで ※返済年数5~50年まで入力できます)
(※ボーナスは年2回で計算しています。1000万円まで入力できます)
(※物件購入時、その他諸費用が発生する場合がございます)
情報の見方担当者のコメント

- こだわりで選びたい方におすすめ。東大阪市エリアで住まいをお探しなら「加納3丁目 中古戸建2号地」。来訪者をモニターで確認できるTVインターホン付きです。広々としたゆとりある室内が魅力的な、4LDKの物件です。浄水器の水で作るお茶やコーヒーは美味しさもこれまでと違います。東大阪市での住まい探しで何か気になる点などがございましたら、メールアドレス
より当社スタッフまでご連絡ください。
ポイント・特徴
物件概要
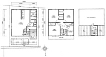
【新築一戸建】 物件番号:74145768 情報更新日:2026年04月02日 次回更新予定日:2026年04月15日所在地 大阪府東大阪市加納3丁目 交通 間取り/詳細 4LDK/ 建物面積(坪数) 95.58㎡(28.91坪) 価格 3,630万円 駐車場/月額料金 有/- 土地の敷金/保証金 -/- 借地料/借地期間 -/- 土地権利 所有権 土地面積(坪数) 93.67㎡(28.33坪) 傾斜地部分面積 - 路地状敷地 - 私道負担面積/セットバック -/無 高圧線下面積 - 地目/地勢 -/- 接道状況 一方(東 公道 4.7m 間口 4.7m) 建ぺい率/容積率 60%/200% 用途地域 第一種住居 都市計画 市街化区域 種別/構造 新築一戸建/木造 階建 2階建 築年月(築年数) 2023年 1月 (新築) 総区画数/販売区画数 -/- 向き - 現況 完成済み その他の法令上の制限 - 取引態様/引渡時期 仲介/相談 建築確認番号 - 物件番号 74145768 取引条件の有効期限 2026年04月15日 設備条件 - フローリング
- バルコニー
- 都市ガス
- 公営水道
- 公共下水
- 2面バルコニー
- ガスコンロ
- コンロ2口以上
- システムキッチン
- コンロ3口
- バス・トイレ別
- 独立洗面台
- 床下収納
- ウォークインクロゼット
- 収納豊富
- TVモニタ付インターホン
備考 4人家族にぴったりの広さのある4LDKの物件情報は当社まで。建物面積95.58㎡もあるので有効活用しましょう。ゆとりある暮らしを実現する、3,630万円の物件です。初めてのマイホームに新築戸建てはいかがでしょうか。ミーツ不動産では東大阪市の不動産を豊富にご用意しております。お引っ越しを検討しているなら、まずはお問い合わせください。 取扱会社 - 株式会社ミーツ不動産
- 大阪府東大阪市荒川3丁目24-25
- TEL:06-6724-3322
- 大阪府知事 (2) 第61665号
宅地建物取引士
損害保険募集人
住宅ローンアドバイザー - 一般社団法人大阪府宅地建物取引業協会会員
公益社団法人全国宅地建物取引業保証協会会員
公益社団法人近畿地区不動産公正取引協議会会員
※地図上に表示される物件の位置は付近住所に所在することを表すものであり、実際の物件所在地とは異なる場合がございます。
物件お問い合わせ
- 掲載物件数
-
件
- 本日の更新件数
-
件
同じエリアの新築一戸建
価格と住所の近い物件
- 今米1丁目 新築戸建2号地
- 3,590万円 4LDK/96.39㎡
- 大阪府東大阪市今米1丁目
- 近鉄けいはんな線「吉田」駅 徒歩7分
- 東石切町6丁目 新築戸建
- 3,580万円 4LDK/95.84㎡
- 大阪府東大阪市東石切町6丁目
- 近鉄難波・奈良線「石切」駅 徒歩9分
- 中石切町3丁目 新築戸建 B号地
- 3,580万円 3LDK/104.32㎡
- 大阪府東大阪市中石切町3丁目
- 近鉄けいはんな線「新石切」駅 徒歩16分
- 花園町1丁目 新築戸建
- 3,710万円 4LDK/115.91㎡
- 大阪府東大阪市花園西町1丁目
- 近鉄難波・奈良線「河内花園」駅 徒歩7分
- 加納3丁目 中古戸建6号地
- 3,730万円 4LDK/96.18㎡
- 大阪府東大阪市加納3丁目
- 近鉄けいはんな線「吉田」駅 徒歩23分















