中石切町3丁目 新築戸建 A号地
多くの方からご好評頂いている中石切町3丁目 新築戸建 A号地のご紹介です。キッチンに窓あり、臭いや熱がこもらず快適に過ごせます。これからの新生活での暮らしを一新するために、新築戸建てはいかがでしょうか。東大阪市にある近鉄けいはんな線新石切周辺の一戸建て探しをする方は、ミーツ不動産がお勧めする一戸建て情報をご覧下さい。ご連絡は06-6724-3322にお願いします。
-
ローンシミュレーションこの物件を購入した場合の、月々の支払い価格の一例です。借り入れを保証するものではございません。
- 返済期間
-
- 金利
-
- ボーナス時の増額(1回分)
-
- 借入金額:
-
- 頭金:
-

- 毎月の返済額:
(※元利均等方式 金利5.00%まで ※返済年数5~50年まで入力できます)
(※ボーナスは年2回で計算しています。1000万円まで入力できます)
(※物件購入時、その他諸費用が発生する場合がございます)
情報の見方担当者のコメント

- 近鉄けいはんな線新石切周辺への引っ越しをお考えなら「中石切町3丁目 新築戸建 A号地」。洗面所が独立している物件です。価格も3,380万円と、この条件の物件としては魅力的です。キッチンに窓付、お料理の後は窓を開け空気の入れ替え。近鉄けいはんな線新石切近郊の一戸建てをお求めの方は、種類を豊富に取り揃えている06-6724-3322にご依頼下さい。info@meets-fs.co.jp、ミーツ不動産より承っております。
ポイント・特徴
物件概要
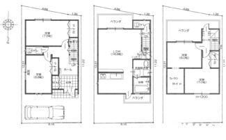
【新築一戸建】 物件番号:73918150 情報更新日:2026年02月12日 次回更新予定日:2026年02月25日所在地 大阪府東大阪市中石切町3丁目 交通 間取り/詳細 4LDK/ 建物面積(坪数) 112.18㎡(33.93坪) 価格 3,380万円 駐車場/月額料金 有/- 土地の敷金/保証金 -/- 借地料/借地期間 -/- 土地権利 所有権 土地面積(坪数) 72.22㎡(21.84坪) 傾斜地部分面積 - 路地状敷地 - 私道負担面積/セットバック -/無 高圧線下面積 - 地目/地勢 -/- 接道状況 一方(北 公道 7.4m 間口 6.1m) 建ぺい率/容積率 60%/200% 用途地域 第一種住居 都市計画 市街化区域 種別/構造 新築一戸建/木造 階建 2階建 築年月(築年数) 2023年 12月 (新築) 総区画数/販売区画数 -/- 向き - 現況 未着工 その他の法令上の制限 - 取引態様/引渡時期 仲介/相談 建築確認番号 第REJ22211-32576号 物件番号 73918150 取引条件の有効期限 2026年02月25日 設備条件 - フローリング
- ベランダ
- ルーフバルコニー
- システムキッチン
- バス・トイレ別
- 独立洗面台
- ウォークインクロゼット
備考 キッチンに窓あり、臭いや熱がこもらず快適に過ごせます。屋根付きのベランダなら洗濯物を干すのにピッタリです。建物面積は30坪以上で開放感があります。戸建て物件をご検討なら、コチラの新築の物件をご覧ください。近鉄けいはんな線新石切周辺で、不満が生じない暮らしを送りましょう。06-6724-3322から戸建てに求めるこだわりを、ミーツ不動産までお聞かせ下さい。 取扱会社 - 株式会社ミーツ不動産
- 大阪府東大阪市荒川3丁目24-25
- TEL:06-6724-3322
- 大阪府知事 (2) 第61665号
宅地建物取引士
損害保険募集人
住宅ローンアドバイザー - 一般社団法人大阪府宅地建物取引業協会会員
公益社団法人全国宅地建物取引業保証協会会員
公益社団法人近畿地区不動産公正取引協議会会員
※地図上に表示される物件の位置は付近住所に所在することを表すものであり、実際の物件所在地とは異なる場合がございます。
物件お問い合わせ
- 掲載物件数
-
件
- 本日の更新件数
-
件
同じエリアの新築一戸建
価格と住所の近い物件
- 角田3丁目 新築戸建 3号地
- 3,380万円 4LDK/95.58㎡
- 大阪府東大阪市角田3丁目
- 近鉄けいはんな線「吉田」駅 徒歩12分
- 日下町1丁目 新築戸建 5号地
- 3,380万円 4LDK/99.62㎡
- 大阪府東大阪市日下町1丁目
- 近鉄難波・奈良線「石切」駅 徒歩12分
- 今米1丁目 新築戸建3号地
- 3,390万円 4LDK/98.01㎡
- 大阪府東大阪市今米1丁目
- 近鉄けいはんな線「吉田」駅 徒歩7分
- 角田3丁目 新築戸建
- 3,280万円 4LDK/98.01㎡
- 大阪府東大阪市角田3丁目
- 近鉄けいはんな線「吉田」駅 徒歩12分
- 西堤本通東3丁目 中古戸建
- 3,280万円 3LDK/87.84㎡
- 大阪府東大阪市西堤本通東3丁目
- 地下鉄中央線「高井田」駅 徒歩13分
















