北本町3丁目 中古戸建 1号地
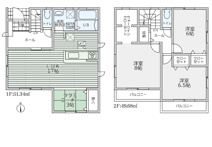
角地なので日当たりも良く健康的な生活に適しています。トイレが2ヶ所にあるので複数人でも快適に暮らせます。サービスルームも付いた3SLDKの物件は優雅な空間が広がってます。システムキッチンは使いやすく汚れにくいのでご好評です。近鉄大阪線近鉄八尾周辺での住まい探しで何かご不明な点などがございましたら、info@meets-fs.co.jpにてご質問ください。
-
ローンシミュレーションこの物件を購入した場合の、月々の支払い価格の一例です。借り入れを保証するものではございません。
- 返済期間
-
- 金利
-
- ボーナス時の増額(1回分)
-
- 借入金額:
-
- 頭金:
-

- 毎月の返済額:
(※元利均等方式 金利5.00%まで ※返済年数5~50年まで入力できます)
(※ボーナスは年2回で計算しています。1000万円まで入力できます)
(※物件購入時、その他諸費用が発生する場合がございます)
情報の見方担当者のコメント

- こちらの物件はキッチンも広々してるので快適に料理ができます。建物面積127.34㎡以上あるので広々と使えます。住みやすい空間の条件の1つに前面道路が6m以上あるところを入れてみては。角地なので日当たりも良く健康的な生活に適しています。お客様に合った一戸建てをミーツ不動産がお探し致します。まずは06-6724-3322/info@meets-fs.co.jpからお問い合わせ下さい。
ポイント・特徴
物件概要
【新築一戸建】 物件番号:74315518 情報更新日:2026年04月02日 次回更新予定日:2026年04月15日所在地 大阪府八尾市北本町3丁目 交通 間取り/詳細 2LDK/ 建物面積(坪数) 127.34㎡(38.52坪) 価格 4,980万円 駐車場/月額料金 有/- 土地の敷金/保証金 -/- 借地料/借地期間 -/- 土地権利 所有権 土地面積(坪数) 68.90㎡(20.84坪) 傾斜地部分面積 - 路地状敷地 - 私道負担面積/セットバック -/無 高圧線下面積 - 地目/地勢 -/- 接道状況 角地(北東 公道 6.0m 間口 4.5m)(西 公道 5.5m 間口 8.5m) 建ぺい率/容積率 80%/200% 用途地域 第一種住居 都市計画 市街化区域 種別/構造 新築一戸建/木造 階建 3階建 築年月(築年数) 2022年 12月 (新築) 総区画数/販売区画数 -/- 向き - 現況 完成済み その他の法令上の制限 - 取引態様/引渡時期 仲介/相談 建築確認番号 - 物件番号 74315518 取引条件の有効期限 2026年04月15日 設備条件 - フローリング
- バルコニー
- システムキッチン
- 対面式キッチン
- バス・トイレ別
- トイレ2ヶ所
- 独立洗面台
- 収納豊富
備考 安心の前面道路6m以上の条件を備えております。駅から徒歩9分の物件です。フローリングなので、どんな世代の方にもなじみます。4,980万円の物件で、ゆとりのある理想の生活をおくりましょう。一戸建て購入で失敗したくないなら、ミーツ不動産へとご連絡ください。06-6724-3322やinfo@meets-fs.co.jpからお問い合わせいただければ、スタッフがサポート致します。 取扱会社 - 株式会社ミーツ不動産
- 大阪府東大阪市荒川3丁目24-25
- TEL:06-6724-3322
- 大阪府知事 (2) 第61665号
宅地建物取引士
損害保険募集人
住宅ローンアドバイザー - 一般社団法人大阪府宅地建物取引業協会会員
公益社団法人全国宅地建物取引業保証協会会員
公益社団法人近畿地区不動産公正取引協議会会員
※地図上に表示される物件の位置は付近住所に所在することを表すものであり、実際の物件所在地とは異なる場合がございます。
物件お問い合わせ
- 掲載物件数
-
件
- 本日の更新件数
-
件
同じエリアの新築一戸建
価格と住所の近い物件
- 北本町3丁目 中古戸建 3号地
- 4,780万円 3LDK/127.34㎡
- 大阪府八尾市北本町3丁目
- 近鉄大阪線「近鉄八尾」駅 徒歩9分
- 南木の本7丁目 新築戸建 1号地
- 3,980万円 3LDK/101.02㎡
- 大阪府八尾市南木の本7丁目
- 地下鉄谷町線「八尾南」駅 徒歩9分
- 南木の本7丁目 新築戸建 5号地
- 3,980万円 3LDK/101.02㎡
- 大阪府八尾市南木の本7丁目
- 地下鉄谷町線「八尾南」駅 徒歩9分
- 清水町2丁目 中古戸建
- 3,980万円 4LDK/104.08㎡
- 大阪府八尾市清水町2丁目
- 近鉄大阪線「近鉄八尾」駅 徒歩13分
- 南木の本7丁目 新築戸建 2号地
- 3,880万円 4LDK/118.72㎡
- 大阪府八尾市南木の本7丁目
- 地下鉄谷町線「八尾南」駅 徒歩9分















