◆山本町南 新築戸建◆モデルハウス見学会開催中◆カラーセレクト可♪
◆2階建て、4LDK♪
◆土地面積約27.1坪◆間口約7.4m◆前面道路幅員約4.5m
◆近鉄大阪線【河内山本】駅まで 徒歩約7分
◆南山本小学校まで徒歩約10分 曙川中学校まで徒歩約12分
-
ローンシミュレーションこの物件を購入した場合の、月々の支払い価格の一例です。借り入れを保証するものではございません。
- 返済期間
-
- 金利
-
- ボーナス時の増額(1回分)
-
- 借入金額:
-
- 頭金:
-

- 毎月の返済額:
(※元利均等方式 金利5.00%まで ※返済年数5~50年まで入力できます)
(※ボーナスは年2回で計算しています。1000万円まで入力できます)
(※物件購入時、その他諸費用が発生する場合がございます)
情報の見方担当者のコメント 峰松信嘉

- 生乾きの洗濯物をしっかり乾かしたい時でも、浴室乾燥機付きの物件であればすぐに乾燥できます。家族で暮らすのにお勧めなのは4LDKの物件、伸び伸びと生活を送りましょう。生活を豊かにする様々な設備も充実した、新築の戸建て物件です。自転車をよく使う主婦の方にとってうれしいのが平坦地です。ミーツ不動産がご案内する、八尾市にある一押しの戸建て情報を是非ご確認下さい。ご質問などは、info@meets-fs.co.jpから承っております。
ポイント・特徴
物件概要
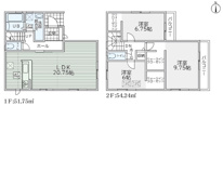
【新築一戸建】 物件番号:87231652 情報更新日:2026年04月02日 次回更新予定日:2026年04月15日所在地 大阪府八尾市山本町南4丁目 交通 間取り/詳細 4LDK/
LDK 17.0帖 1室/洋室 5.2帖 2室/洋室 6.0帖 2室建物面積(坪数) 99.78㎡(30.18坪) 価格 3,780万円 駐車場/月額料金 有/0円 土地の敷金/保証金 -/- 借地料/借地期間 -/- 土地権利 所有権 土地面積(坪数) 89.89㎡(27.19坪) 傾斜地部分面積 - 路地状敷地 - 私道負担面積/セットバック -/無 高圧線下面積 - 地目/地勢 宅地/平坦 接道状況 一方(東 公道 4.5m) 建ぺい率/容積率 60%/200% 用途地域 第一種中高層住居専用 都市計画 市街化区域 種別/構造 新築一戸建/木造 階建 2階建 築年月(築年数) 2026年 5月 (予定) 総区画数/販売区画数 -/- 向き 東 現況 未着工 その他の法令上の制限 景観法/航空法 取引態様/引渡時期 売主/相談 建築確認番号 第KKK02208368号 物件番号 87231652 取引条件の有効期限 2026年04月15日 設備条件 - 閑静な住宅地
- 室内洗濯機置場
- バルコニー
- 都市ガス
- 公営水道
- 公共下水
- 24時間換気システム
- ガスコンロ
- コンロ2口以上
- 食器洗い乾燥機
- システムキッチン
- 対面式キッチン
- コンロ3口
- バス・トイレ別
- 浴室乾燥機
- 温水洗浄便座
- トイレ2ヶ所
- TVモニタ付インターホン
- 複層ガラス
備考 駅徒歩6分の物件です。建物面積は99.78㎡です。家族が集まってコミュニケーションも取りやすい、広々とした15帖以上のLDKとなっております。お子様にも優しい平坦地での生活はいかがでしょうか。八尾市にある一戸建てをお探しなら、ミーツ不動産にご依頼下さい。ご質問などは06-6724-3322、info@meets-fs.co.jpから承っております。 設備(その他) 床暖房有 条件(その他) 外構費及び上水道市納金一括:100万円 取扱会社 - 株式会社ミーツ不動産
- 大阪府東大阪市荒川3丁目24-25
- TEL:06-6724-3322
- 大阪府知事 (2) 第61665号
宅地建物取引士
損害保険募集人
住宅ローンアドバイザー - 一般社団法人大阪府宅地建物取引業協会会員
公益社団法人全国宅地建物取引業保証協会会員
公益社団法人近畿地区不動産公正取引協議会会員
※地図上に表示される物件の位置は付近住所に所在することを表すものであり、実際の物件所在地とは異なる場合がございます。
物件お問い合わせ
- 掲載物件数
-
件
- 本日の更新件数
-
件
同じエリアの新築一戸建
価格と住所の近い物件
- 長池町4丁目 新築戸建2号地
- 3,780万円 2LDK/99.63㎡
- 大阪府八尾市長池町4丁目
- 近鉄大阪線「河内山本」駅 徒歩20分
- 南木の本7丁目 新築戸建 3号地
- 3,780万円 3LDK/112.61㎡
- 大阪府八尾市南木の本7丁目
- 地下鉄谷町線「八尾南」駅 徒歩9分
- 東山本町1丁目 新築戸建1号地
- 3,820万円 4LDK/93.50㎡
- 大阪府八尾市東山本町1丁目
- 近鉄大阪線「河内山本」駅 徒歩6分
- 東山本町1丁目 新築戸建2号地
- 3,870万円 4LDK/93.50㎡
- 大阪府八尾市東山本町1丁目
- 近鉄大阪線「河内山本」駅 徒歩6分
- 南木の本7丁目 新築戸建 4号地
- 3,880万円 3LDK/105.99㎡
- 大阪府八尾市南木の本7丁目
- 地下鉄谷町線「八尾南」駅 徒歩9分
















